Naša spoločnosť a naši partneri uchovávajú alebo pristupujú k informáciám v zariadeniach, napríklad k súborom cookies, a spracúvajú osobné údaje, ako sú jedinečné identifikátory a štandardné informácie, ktoré zariadenie posiela na účely opísané nižšie. Súhlas s vyššie uvedeným spracúvaním môžete poskytnúť kliknutím na tlačidlo “Prijať všetko”. Alebo môžete jeho poskytnutie odmietnuť a zmeniť svoje prednostné nastavenia kliknutím na tlačidlo “Spravovať nastavenia”. Vaše prednostné nastavenia sa budú vzťahovať len na túto webovú lokalitu. Na niektoré formy spracúvania vašich osobných údajov nepotrebujeme váš súhlas. Ak sa vrátite na túto stránku alebo navštívite naše zásady v oblasti ochrany súkromia, môžete kedykoľvek zmeniť svoje prednostné nastavenia.
![]() |
Komunitné centrum Ferčekovce
kompletná PD pre možnosť uchádzať sa o NFP
Lokalita: Ferčekovce
Charakter stavby: novostavba
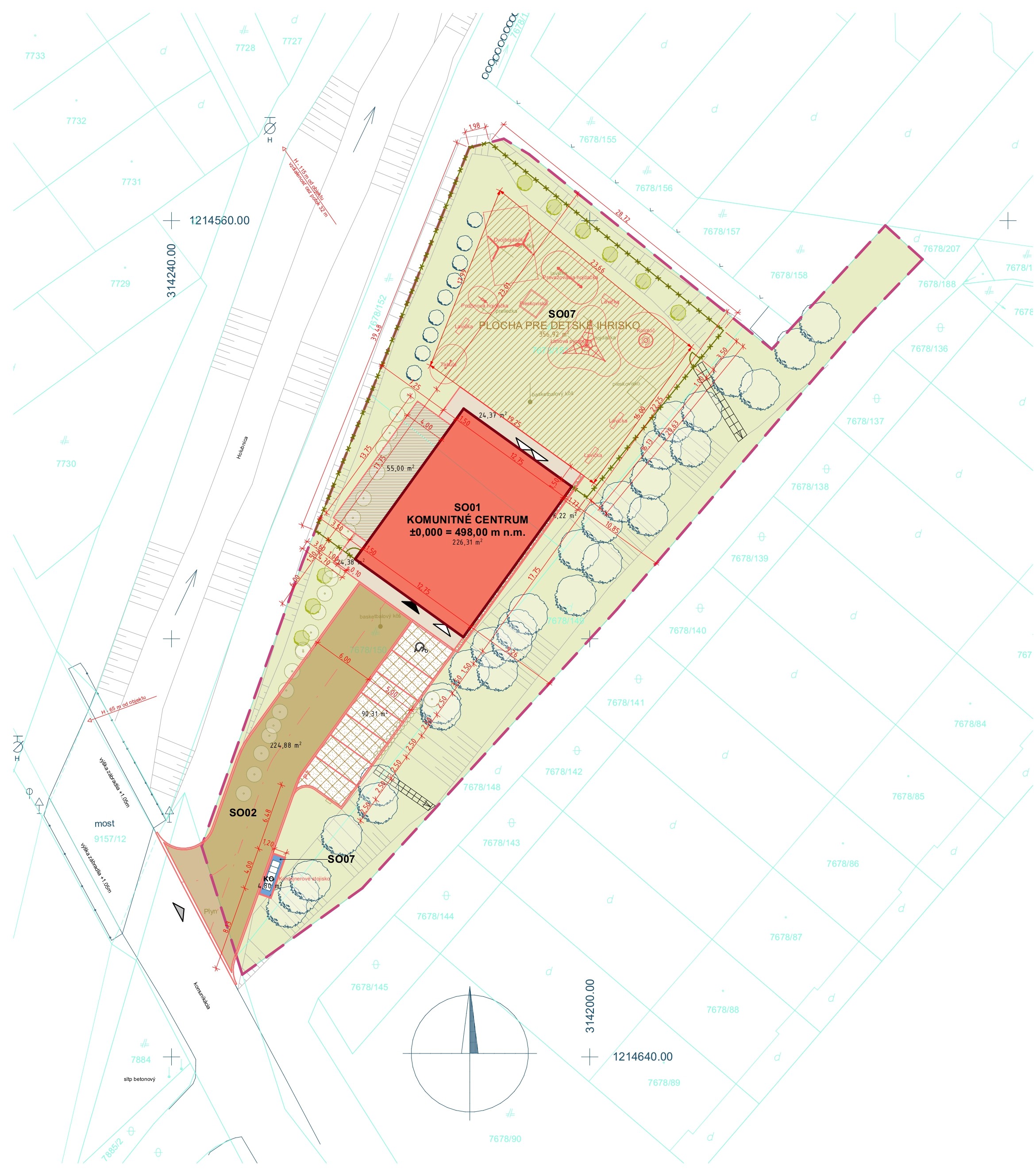
Predmetom projektovej dokumentácie je výstavba komunitného centra v lokalite Ferčekovce. Objekt bude využívaný miestnou komunitou a je kapacitne navrhnutý pre max. 50 osôb. Riešený objekt bude prízemný s plochou strechou, bez podpivničenia. Pôdorysné je riešený v tvare obdĺžnika s max. rozmermi 12,75 x 17,75 m. Okolo objektu bude vybudovaný chodník a zo severozápadnej strany terasa. Vstupy do objektu ako aj terasa budú čiastočne prestrešené plochými strieškami vytŕčajúcimi z objektu.
Riešený objekt bude zložený z viacerých prvkov dopĺňajúcich funkčné a prevádzkové využitie vonkajších priestorov komunitného centra. Súčasťou tohto objektu je oplotenie, lavičky, prvky detského ihriska a stojisko pre komunálny odpad. Jednotlivé prvky budú rozmiestnené na pozemku podľa ich charakteru a využitia.
Autor projektu: Ing. Peter Vrana, 12/2024
Predmetnému projektu sa venuje Referát územného plánovania.
Viac informácií: Ing. arch. Nikola Magačová, nikola.magacova@mestosnv.sk
![]() |
![]() |




